
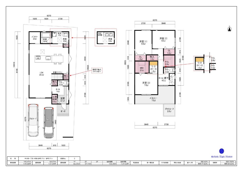
【間取りの部屋】
こちらでは、実際に建てられたお家以外に「参考プラン」として描かれた間取り図を随時公開致します。
玄関や収納の取り方、LDKなど、様々なところの “こだわり” を観ていただければと思います。
新築・注文住宅|株式会社Sign Home
建築プランでは、土地の間口や奥行などが関係するのですが、それぞれの間取りと全体的なバランスをご覧いただければと思います。
本ページが、いつの日か建築される皆様のお役に立てれば幸いです。
間取りの部屋


















【間取りの部屋】
こちらでは、実際に建てられたお家以外に「参考プラン」として描かれた間取り図を随時公開致します。
玄関や収納の取り方、LDKなど、様々なところの “こだわり” を観ていただければと思います。
建築プランでは、土地の間口や奥行などが関係するのですが、それぞれの間取りと全体的なバランスをご覧いただければと思います。
本ページが、いつの日か建築される皆様のお役に立てれば幸いです。
















